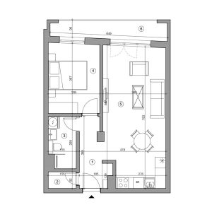
STAN 8 / II sprat

54.99 m²

DVOSOBAN

  1. Hodnik – 4.50 m²
  2. Ostava – 1.40 m²
  3. Kupatilo – 4.16 m²
  4. Soba – 11.08 m²
  5. Dnevna soba sa trpezarijom – 27.20 m²
  6. Terasa – 6.65 m²

NETO POVRŠINA STANA : 54.99 m²  

 

izdvajamo